URDAPLAST FREGADERO SINTÉTICO TÍETAR 880X500
Fregadero fabricado por Urdaplast, fabrica con mas de 15 años en el sector situada en Urda, Toledo.
Estos lavabos están fabricados a base de Resinas sintéticas y reforzadas con minerales como el cuarzo y granito, utilizando esmaltes como el GELCOAT, que le aporta resistencia a determinados agentes de uso cotidiano en el hogar, consiguiendo así un producto, de gran resistencia al rayado , a los golpes y a las mancha.
CARACTERISTICAS
FREGADERO REVERSIBLE CUBETA Y ESCURRIDOR DE GRAN CAPACIDAD,
instalación aconsejable sobre encimera,
Carga mineral (aumenta la resistencia).
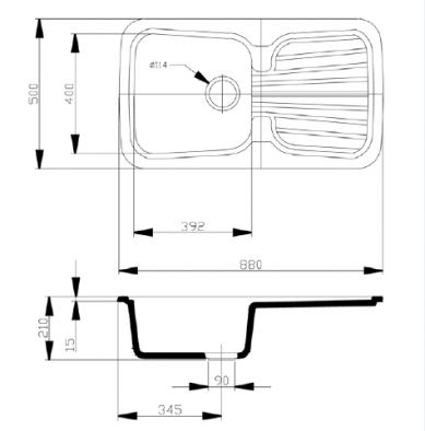
- Apto para mueble de 60 cm.
- Medidas de encastre: 460 cm ancho x 860cm largo.
- El precio incluye:
Válvula cestilla.
Disponible en todos los colores de la carta Urdaplast, ademas se puede fabricar cualquier otro color disponible en la Carta Ral ,( Consúltenos)
Plazo de Entrega 8 a 10 dias,
GALERIA DE MUEBLES DE BAÑO SALGAR , CAMPOARAS,
catálogos para baños
Catalogos PDF Mesas y Fregaderos
nuevos accesorios de beltran
sillas de estudios hispanohogar
salgar Muebles de baño MAM
Quien somos
Galeria Imagenes encimeras de baño,Solid Surface, Silestone, Gel-Coat
Imagenes Productos funerarios
654545378 |
Cambios y devoluciones
|
Aviso legal y cookies-Condiciones de uso
|
Política de privacidad